- Moderne Eleganz gepaart mit neuester Technik!
---alle Häuser verkauft!
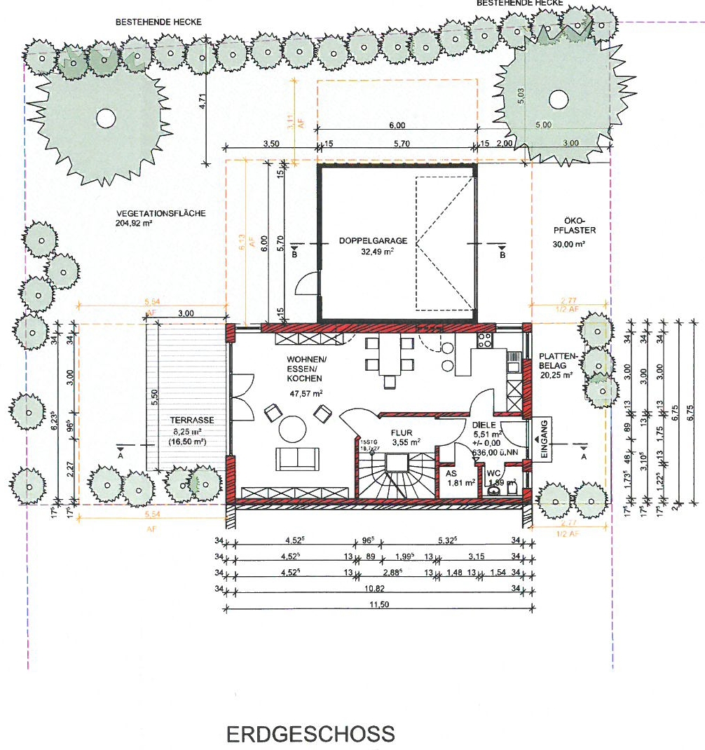
In sehr schöner Lage – in einem gewachsenen Wohngebiet in
Waal (8 km nach
Buchloe und 6 km zur A96) befinden sich diese fast fertig gestellten,
4 eleganten Doppelhaushälften mit modernster Technik in ökologischer
Holzständerbauweise. Die
Energieeffizienzhäuser 55 bestechen insbesondere durch: 3-fache Schall und
Isolierverglasung mit überwiegend bodentiefen Fenstern (innen weiß - außen anthrazit), 1
Gäste-WC im EG,
großes Bad im Obergeschoss, Wärmepumpe mit Fußbodenheizung, edle Schreinerholztreppe mit Edelstahlgeländer. Die Grundstücksgröße beträgt
ab ca. 384 bis zu 452 m², Wohnfläche ca. 144m², 4 Zimmer – ein
weiteres ist möglich im Souterrain (z.B. als Büro oder Gästezimmer). Die Ausstattung, Fliesen, Bodenbeläge,
Sanitärausstattung kann noch frei gewählt werden; hier stehen
hochwertige Muster zur Auswahl. Die Fertigstellung ist ca. 12-2017.
Eine
Musterhausbesichtigung lässt sich gerne vereinbaren. Waal ist sehr verkehrsgünstig gelegen. Schnell erreichen Sie
den Bahnhofs-Knotenpunkt Buchloe mit besten Verbindungen nach München,
Augsburg und in die Urlaubsgebiete. Zum Hauptbahnhof München fahren die
Züge im 30-Minuten Takt. In wenigen Minuten erreichen Sie die BAB A-96
München - Lindau und die als Autobahn ausgebaute, neue B 17 in Richtung
Augsburg. Zum Bahnhof nach Buchloe besteht eine Busverbindung. Kaufpreise
ab
€ 399.000.-- zzgl. optional eine Doppelgarage mit elektrischem
Sektionaltor € 25.000,-- KEINE WEITERE KÄUFERPROVISION!
Widerrufsbelehrung für
Verbraucher als Word-Dokument

|