Neubau! Doppelhaushälften in Waal

Modern und nach neuestem Standard gebaut! (Effizienzhaus 55)
hausansicht  Hausansicht P1040849  Tatsächlicher Bautenstand ca. 08-2017 P1040848  Bautenstand P1040845
P1040846 P1040847 P1040850 P1040851
9232-10  Beispiel aus einem Musterhaus 9258-10  Beispiel aus einem Musterhaus 9360-10  Beispiel aus einem Musterhaus 80 (3)
80 (4) 80 (5) 80 (7) 80 (8)
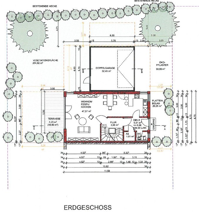
80 (9) eg dg kg
schnitt flaechen preise