• Neubau Reihenmittelhaus in Hurlach zu vermieten - nördlich von Landsberg (momentan noch im Rohbau)  ---vermietet!
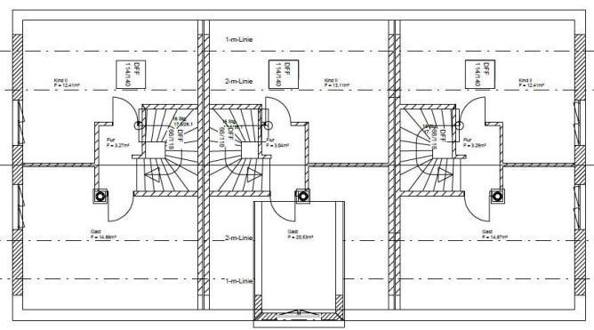
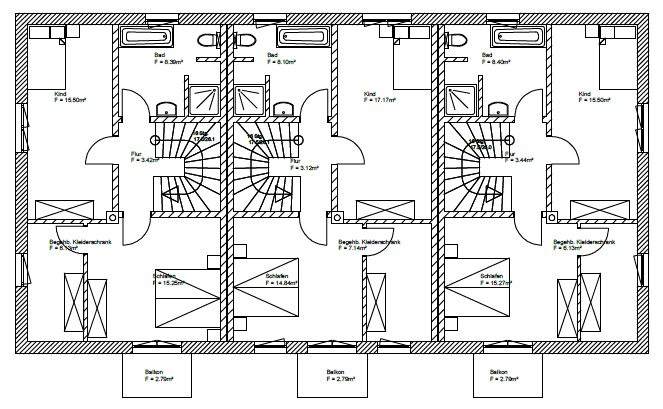
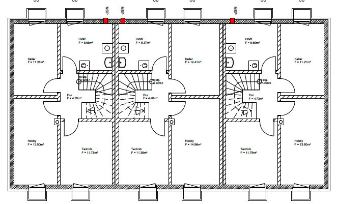
    drei hochwertig gebaute Reihenhäuser mit je ca. 135 m² Wohnfläche, 6 Zimmer, Küche, Speis, Bad und Gäste WC, voll unterkellert. Sämtliche Fenster und Türen sind in dreifach Wärmeschutzverglasung ausgeführt. Im Wohnzimmer befindet sich ein Anschluss für einen Kaminofen. Das Haus (auch der Keller) wird mittels Fußbodenheizung betrieben. Bei der Heizung handelt es sich um eine hochwertige Luft-Wärmepumpe. Das Dach wird mit Photovoltaik zur eigenen Stromgewinnung ausgestattet (Strom wird vom Vermieter gekauft). Als Bodenbeläge im KG und EG werden Fliesen verlegt. In den anderen Räumen werden hochwertige Holzvinylböden verlegt. Die Innentreppe und Fensterbänke werden in edlen Graniten ausgeführt. Im Garten wird eine Zisterne zur Gartenbewässerung angelegt. Des Weiteren werden in allen 3 Häusern Wasserenthärtungsanlagen installiert um den Kalkgehalt aus dem Trinkwasser zu filtern. Hurlach befindet sich nördlich von Landsberg mit guter Straßenanbindung (eigene Auffahrt zur B17) an die Städte Landsberg, Augsburg und München. Frei ab 01.07.2025. Miete je Reihenhaus € 1.950.-- (inkl. je 2 PKW Stellplätzen) + € 250.-- Nebenkosten + 2 Monatsmieten Kaution.
    Benötigte Unterlagen sind: Schufa und Mieterselbstauskunft

 

 
Energieausweis Ost
Energieausweis Mittelhaus
Energieausweis West
Exposé Grundrisse
   
zum  Fotoalbum hier klicken!
 
Energieausweis - Ausweistyp:  Bedarfsausweis
Befeuerungsart: Wärmepumpe  
Warmwasser enthalten: ja  
Baujahr Anlagentechnik: 2025  
Kennwert: A+  RH West 18,6 kWh(m²a)  /  RH Ost 18,6 kWh(m²a)  /   RMH  14,1 kWh(m²a)
 
Erdgeschoss
 
Obergeschoss
 
Dachgeschoss
 
Kellergeschoss
             
 

Anfrage per Telefon: 08191-42 686 oder per e-mail

 
 
zurück zu allen Mietangeboten

Bei den Angaben im Exposé handelt es sich um Angaben des Eigentümers bzw. Dritter.
Daher  wird für die Richtigkeit der Angaben sowie aller Darstellungen und Maßangaben keinerlei Gewähr übernommen. 
Irrtum und Zwischenverkauf vorbehalten! Die Informationen auf dieser Webseite ersetzen keine persönliche Beratung! 
Wir behalten uns das Recht vor, Änderungen, Ergänzungen oder Löschungen der bereitgestellten Informationen jederzeit vorzunehmen.
1995-2026 Copyright © Immobilien Susanne Denkmann. Genehmigung nach § 34c GewO vom Landratsamt 86899 Landsberg, von-Kühlmann-Str. 15 erteilt.
Die Umsatzsteuer Nr. lautet:  DE186885298 Finanzamt Landsberg am Lech.
Für alle Angebote gelten unsere AGB!
Datenschutz  /  Impressum-Disclaimer / AGB & Widerruf