• Baugrundstück in Ortsrandlage für Einfamilienhaus in Fuchstal-Asch                           ---verkauft!
    ca. 810 m² in Ortsrandlage für ein Einfamilienhaus (E+D) in Fuchstal, Ortsteil Asch - südl. von Landsberg. Das Baugrundstück liegt in einem familienfreundlichen Neubaugebiet. Gute Infrastruktur! Gute Anbindung an die B 17 in Richtung Augsburg und an die A96 in Richtung München.  Das Grundstück ist erschlossen! Es sind lediglich die Hausanschlusskosten zu zahlen. Kaufpreis € 75.000.-- €
    zzgl. Käuferprovision: 3,57 % inkl. MwSt.
    zum möglichen Haus klicken!
       
       
           
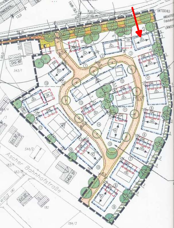
    anklicken und Sie erhalten den Bebauungsplan!          
[photogallery/photo00021738/real.htm]

Anfrage per Telefon: 08191-42 686 oder per e-mail

 
zurück zu allen Grundstücksangeboten

Bei den Angaben im Exposé handelt es sich um Angaben des Eigentümers bzw. Dritter.
Daher  wird für die Richtigkeit der Angaben sowie aller Darstellungen und Maßangaben keinerlei Gewähr übernommen. 
Irrtum und Zwischenverkauf vorbehalten! Die Informationen auf dieser Webseite ersetzen keine persönliche Beratung! 
Wir behalten uns das Recht vor, Änderungen, Ergänzungen oder Löschungen der bereitgestellten Informationen jederzeit vorzunehmen.
1995-2026 Copyright © Immobilien Susanne Denkmann. Genehmigung nach § 34c GewO vom Landratsamt 86899 Landsberg, von-Kühlmann-Str. 15 erteilt.
Die Umsatzsteuer Nr. lautet:  DE186885298 Finanzamt Landsberg am Lech.
Für alle Angebote gelten unsere AGB!
Datenschutz  /  Impressum-Disclaimer / AGB & Widerruf