• Entdecke die Möglichkeiten                           ---verkauft!
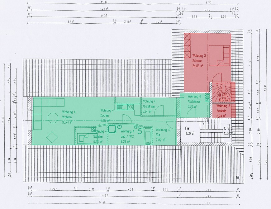
    Großzügiges Wohn- und Geschäftshaus mit 4 Wohnungen und Gewerbemöglichkeit in Oberauerbach - 4 km von Mindelheim entfernt und 1,5 km zur A96, ca. 20 min. nach Landsberg, zu verkaufen. Es handelt sich um eine ehemalige Käserei und Milchabgabestelle – Baujahr ca. 1930 – und ca. 1986 an- und umgebaut, ca. 527 m² Grund, Carport, Stellplatz, geräumige Garage. Drei der Wohnungen sind vermietet und über ein eigenes Treppenhaus zugänglich. Eine Wohnung und das Gewerbe werden vom Eigentümer genutzt und haben separate Eingänge.Die graue Fassade hat eine Wärmedämmung und wurde 2018 gestrichen. Wohnung Nr.4: 1-Zimmer, Dachgeschoss-Appartement, ca. 40m², Schlafkoje, Küchenzeile, Bad mit Dusche und Wanne, viele Schrägen und Dachfenster, 2 Abstellräume, Kaltmiete 260,-- € (Staffelmiete)
    Wohnung Nr.3: 2-Zimmer über zwei Ebenen (1.Obergeschoss und Dachgeschoss), ca. 70m² mit 40m² Dachterrasse mit gemauertem Grill, Bad mit Wanne und Dusche, kl. Küche, Wohnzimmer mit Schwedenofen, Treppe ins DG zum Schlafzimmer und Abstellkammer, Kaltmiete 520,-- €
    Wohnung Nr.2: 3-Zimmer, ca. 105m² mit großem Balkon zur Südseite, Bad mit Wanne und Dusche, Wohnküche, Abstellkammer, Kaltmiete 480,-- Euro (Staffelmiete). Alle Wohnungen haben Kaminanschluss. Für die Mieter gibt es im EG eine Gemeinschaftswaschküche und einen Gemeinschaftskeller.
    Die Wohn- und Gewerbeeinheit befindet sich im Erdgeschoss (2010 kernsaniert FB-Heizung, Fenster, Türen) ist über verschiedene Eingänge erreichbar und verfügt über ca. 160m² Wohn-Nutzfläche. Zu dieser Einheit gehört ein pflegeleichter Steingarten mit kleinem Teich und gemütlicher Sonnenterrasse. Der Wohn- Koch- und Essbereich ist länglich und offen gestaltet und wird zusätzlich von oben belichtet. Schlafzimmer, Bad und Büro sowie Gewerberäume, Ausstellungsraum und Lagerräume runden die Sache ab. Verfügbar wäre diese Einheit ab ca. Mai 2020. Die Nutzungsmöglichkeiten der Gewerbeeinheit sind vielfältig und lassen fast jede Art von Gewerbe zu. Ein 8m tiefer Brunnen im Gebäude gehört dazu (evtl. Wärmepumpenheizung möglich). Kaufpreis € 519.000,-- zzgl. Käuferprovision 3,57 % inkl. MwSt.

Download
Energieausweis
Exposé Grundrisse
 
zum  Fotoalbum hier klicken!
 
 
Energieausweis - Ausweistyp: Energieverbrauchskennwert
 
Befeuerungsart: Heizöl  
Baujahr Anlagentechnik: 1996  
Energieeffizienzklasse: -E-  
Verbrauchsausweis: Energieverbrauchskennwert: 145 kWh/(m²a)
 
     
              
 
              
 

Anfrage per Telefon: 08191-42 686 oder per e-mail

 
 
  zurück zu allen Hausangeboten

Bei den Angaben im Exposé handelt es sich um Angaben des Eigentümers bzw. Dritter.
Daher  wird für die Richtigkeit der Angaben sowie aller Darstellungen und Maßangaben keinerlei Gewähr übernommen. 
Irrtum und Zwischenverkauf vorbehalten! Die Informationen auf dieser Webseite ersetzen keine persönliche Beratung! 
Wir behalten uns das Recht vor, Änderungen, Ergänzungen oder Löschungen der bereitgestellten Informationen jederzeit vorzunehmen.
1995-2026 Copyright © Immobilien Susanne Denkmann. Genehmigung nach § 34c GewO vom Landratsamt 86899 Landsberg, von-Kühlmann-Str. 15 erteilt.
Die Umsatzsteuer Nr. lautet:  DE186885298 Finanzamt Landsberg am Lech.
Für alle Angebote gelten unsere AGB!
Datenschutz  /  Impressum-Disclaimer / AGB & Widerruf