-
Gemütliches Reihenmittelhaus in ruhiger Lage von
Kaufering ---verkauft!
In sehr ruhiger, beliebter Lage von
Kaufering befindet sich dieses
gemütliche und liebevoll gepflegte Reihenmittelhaus, Baujahr 2000, ca.
128m² Wohnfläche, ca. 297m² Grund, 5 Zimmer inkl. ausgebauten
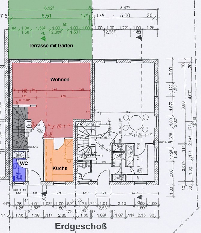
Dachgeschoss. Das Erdgeschoss besteht aus Eingangesbereich mit Garderobe
und Gäste-WC, großzügigem, lichtdurchflutetem Wohnzimmer
(Parkettfussboden) mit Essbereich und angrenzender Küche (Einbauküche
kann übernommen werden). Im Obergeschoss befindet sich das helle Bad mit
Fenster, Badewanne und Dusche sowie 3 Schlafräume – eins davon mit
Zugang zum Südbalkon. Das Dachgeschoss ist zu einem großen Studiozimmer
ausgebaut (Laminatboden) und verfügt über einen kleinen Speicher, in dem
sich auch die Heizung (Gastherme mit Flüssiggastank im Garten) befindet. Der
Keller ist komplett gefliest und besteht aus einem großen Werkraum,
einem Vorratsraum und der Waschküche. Die Südterrasse und der Südbalkon
sind mit einer Markise ausgestattet. Zum Haus gehören 2 Garagen, die
auch einen Zugang vom Garten haben. Insgesamt ein liebevoll gepflegtes
Haus – ideal für eine Familie und kurzfristig verfügbar.
Kaufpreis € 650.000,--
zzgl. Käuferprovision
2,38 % inkl. MwSt.
Widerrufsbelehrung für
Verbraucher als Word-Dokument

|