-
Neuwertige Doppelhaushälfte in ruhiger
Ortsrandlage von Graben ---vermietet!
Die neuwertige DHH (Erstbezug 2017) in
Graben befindet sich in ruhiger und schöner
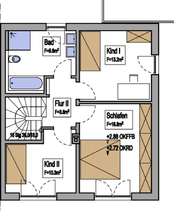
Ortsrandlage, ca. 288m² Grund, ca. 117m² Wohnfläche, 4
Zimmer, Küche, Bad, WC, großer Dachboden. Das Haus besticht insbesondere
durch die bodentiefen Fenster (elektrische Rollläden), die die Räume mit
Licht durchfluten. Küche, Flure und Treppe sind mit schönen, hellen
Bodenfliesen ausgestattet. Wohn- und Schlafräume haben einen hellen
Vinylboden in Holzoptik. Die Zimmertüren sind weiß mit modernen
Drückergarnituren. Das Bad verfügt über 2 Waschbecken, WC, Regendusche
und Wanne sowie Fenster. Im Obergeschoss hat man bei gutem Wetter
Bergblick. Im Wohnzimmer besteht die Anschlussmöglichkeit für einen
Kaminofen- ansonsten Fußbodenheizung im gesamten Haus. Sowohl die
zentrale Lüftungsanlage mit Wärmerückgewinnung als auch die Solarthermie
Anlage tragen dazu bei Heizkosten zu sparen. Das Haus ist
nicht unterkellert – Staumöglichkeit besteht im großen Dachboden und in
der überlangen (7m) Garage. Für die vorhandene Einbauküche mit Spüle,
Spülmaschine, Backofen, Ceranfeld und Side-by-Side Kühlschrank sowie die
Terrassenüberdachung ist eine Ablöse von Euro 3.000,-- an den Vermieter
zu zahlen. Ein Haustier ist kein Problem! Bezugsfrei ab 01.02.2022 oder
ggf. auch später.
Kaltmiete € 1.250.-- + € 70.-- Garage inkl. 1 Stellplatz
(Gesamtkaltmiete 1.320.-- €) + € 130.-- Nebenkosten zzgl. Gas (zur Zeit
90.--€) + 2 Monatsmieten Kaution.
Benötigte Unterlagen sind:
Schufa, Verdienstbescheinigungen und Mieterselbstauskunft
|
|
|
| |
| Energieausweis - Ausweistyp: Bedarfsausweis -A- |
| Befeuerungsart: |
Gas |
|
| Warmwasser enthalten: |
ja |
|
| Baujahr Anlagentechnik: |
2017 |
|
|
|
|
|
|
|
|
Erdgeschoss |
| |
|
|
Obergeschoss |
| |
|
Anfrage per Telefon: 08191-42
686 oder per e-mail |
 |
|
| |
 |
zurück
zu allen Mietangeboten |
|