|
|
-
Wohnen wie im eigenen Haus
---verkauft!
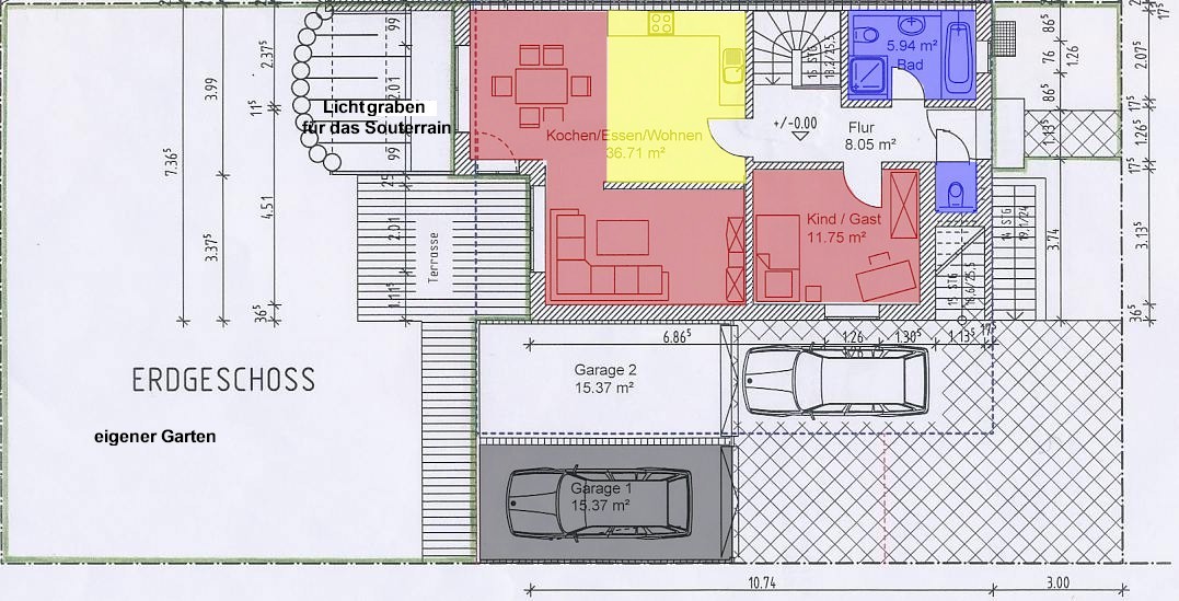
Diese 4-Zimmer-Garten-Wohnung (Baujahr 2011) in einem 2-Parteien-Haus
befindet sich in sehr ruhiger Lage von Kaufering. Sie verfügt über ca.
100m² Wohn-Nutzfläche im EG und UG. Man betritt die Wohnung über einen
eigenen Eingang auf der Ostseite. Die helle Diele ist durch eine
Glastüre vom Wohnbereich getrennt. Links vom Eingang befindet sich das
Gäste-WC – rechts vom Eingang das chice, in beige, grau und weiß
gehaltene Bad mit Fenster, Badewanne, Einbau-Doppelwaschbecken, WC und
Glasdusche. Vis à vis erreicht man das Kinder- bzw. Gästezimmer, das mit
einem schönen, hellen Ahornlaminatboden ausgestattet ist. Der
lichtdurchflutete Wohn- Eß- und Kochbereich besticht insbesondere durch
eine Traum in weiß – eine moderne Hochglanz-Einbauküche mit eleganten
Edelstahlgriffen, viel praktischer Arbeitsfläche, einem Apothekerauszug,
zwei Karussell-Eckschränken und einem Jalousienschrank. Der
Wohn-Küchenbereich ist offen, großzügig und mit viel Stauraum angelegt –
eine Ständerwand trennt den kuscheligen Wohnbereich vom Rest ab und
bietet Privatsphäre. Eine solide Buchenholztreppe führt von der Diele
ins Untergeschoß. Hier befinden sich ein großes und ein etwas kleineres
Schlafzimmer und ein Vorratsraum. Die Schlafräume sind beide sehr schön
hell durch die begrünte Abböschung und sind ebenfalls mit Ahornlaminat
ausgestattet. Ein PC-Platz wurde pfiffig unter dem Treppenabgang
integriert. Abgetrennt durch eine Tür gelangt man in den
(Gemeinschafts-) Heizungs- und Waschraum sowie zur Außentreppe. Zur
Wohnung gehört ein liebevoll angelegter pflegeleichter Garten zur
alleinigen Nutzung. Auf der lauschigen Terrasse kann man in Ruhe die
Seele baumeln lassen. Eine Einzelgarage mit zusätzlichem Stauraum auch
im Dachspitz gehört ebenfalls zur Wohnung. Insgesamt handelt es sich um
eine sehr gepflegte, lichtdurchflutete Wohnung auf zwei Ebenen mit
hochwertigen Materialien ausgestattet und in einem modernen Design. Die
Wohnung ist kurzfristig verfügbar. Kaufpreis inkl. Einbauküche und
Badmöbeln. Monatliches Hausgeld € 200.--. Kaufpreis € 359.000 zzgl. Einzelgarage € 16.000,-- zzgl.
Käuferprovision 3,57 % inkl. MwSt.
Widerrufsbelehrung als
Word-Dokument

|
|
|
| |
| Energieausweis: |
Verbrauchsausweis |
|
| Befeuerungsart: |
Erdgas E |
|
| Baujahr Anlagentechnik: |
2011 |
|
| Warmwasser enthalten: |
ja |
|
| Energieeffizienzklasse: |
-C- |
|
|
| Verbrauchsausweis: |
Endenergieverbrauch: 75,9
kWh/(m²a) |
|
| |
 |
| |
 |
| |
|
Anfrage per Telefon: 08191-42
686 oder per e-mail |
 |
|
| |
 |
zurück
zu allen Wohnungen |
|