|
|
-
Dachterrassenwohnung in ruhiger Lage von Landsberg-Nord
---verkauft!
In schöner, ruhiger und dennoch verkehrsgünstiger Lage von
Landsberg
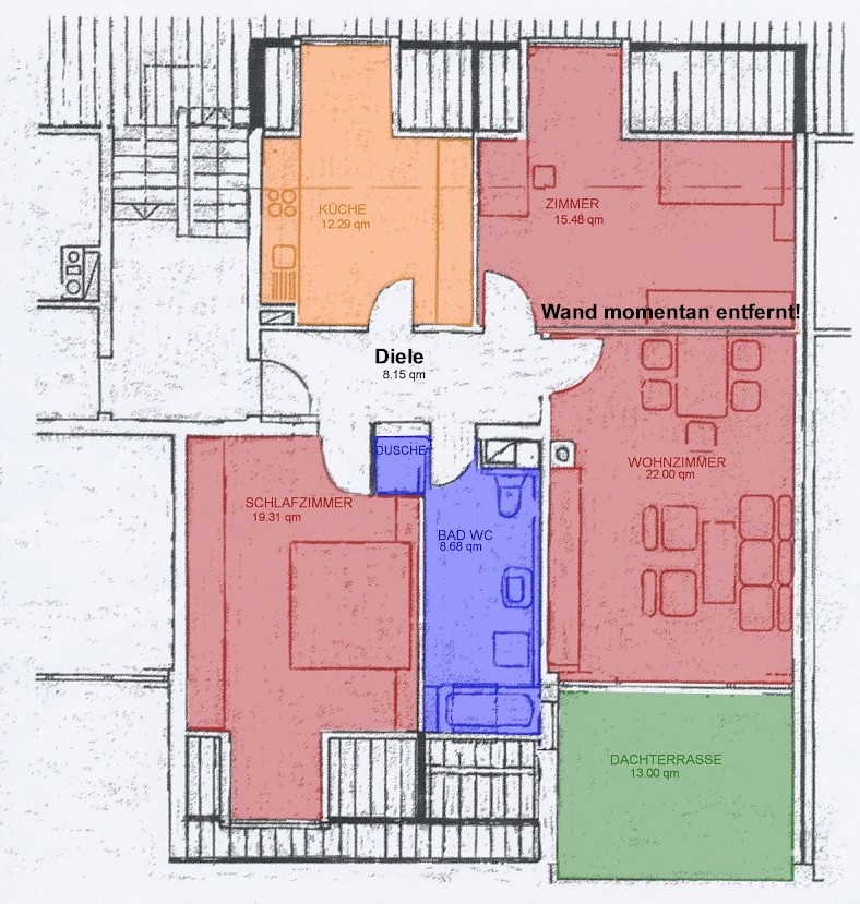
befindet sich diese 1991 von der Fa. Lechstadt erbaute 90 m² große
Dachterrassenwohnung im 3. Obergeschoss (kein Lift) mit Blick nach Süden
in den begrünten Innenhof. Bei schönem Wetter ist die Zugspitze zu
sehen. Momentan besteht die großzügige, lichtdurchflutete Wohnung aus 2
Zimmern, Küche und Bad - es wurde aber bereits ein Türe zusätzlich
gesetzt um problemlos eine Wand für ein 3. Zimmer einzubauen. In den
letzten 2 Jahren wurden neue Laminatböden im Wohn- und Schlafzimmer
verlegt. Die Küche besteht aus einer sehr gepflegten Alno-Einbauküche,
ein Essplatz ließe sich integrieren. Das gepflegte Bad verfügt über 2
Fenster, eine Dusche, Wanne und WC. Die geräumige Dachterrasse lädt zum
Chillen und Sonnenbaden ein. Zur Wohnung gehört ein
Tiefgaragenstellplatz, ein PKW-Stellplatz vor dem Haus und ein
Kellerabteil. Die Wohnung ist ab dem 01.11.2022 bezugsfrei. Monatliches
Hausgeld 278.-- €.
Kaufpreis € 399.000.—
+ € 7.000.-- Stellplatz + € 19.000.--
Tiefgaragenstellplatz zzgl. Käuferprovision 2,38 % inkl. MwSt.
Widerrufsbelehrung als
Word-Dokument

|
|
|
| |
| Energieausweis - Ausweistyp: Verbrauchsausweis |
| Befeuerungsart: |
Erdgas |
|
| Baujahr Anlagentechnik: |
1993 |
|
| Warmwasser enthalten: |
ja |
|
| Energieeffizienzklasse: |
-D- |
|
|
| Verbrauchsausweis: |
Endenergieverbrauch: 112,9
kWh/(m²a) |
|
| |
 |
|
|
| |
|
Anfrage per Telefon: 08191-42
686 oder per e-mail |
 |
|
| |
 |
zurück
zu allen Wohnungen |