|
|
-
Nettes, schnuckeliges 1 Zimmer Appartement in Landsberg am Englischen
Garten
---verkauft!
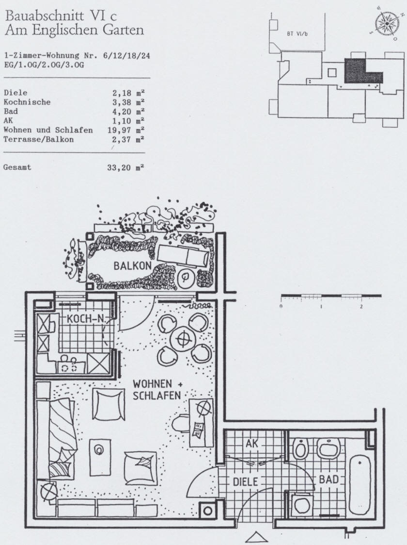
dieses schnuckelige 1 Zimmer Appartement befindet sich im 1
Obergeschoss eines 1992 erbauten Mehrfamilienhauses in der
Hans-Multscher-Str. 5 am Englischen Garten, es verfügt über ca. 33 m²
Wohnfläche mit einem sep. Kochnischenbereich (Einbauküche
vorhanden), der Balkon geht zur Westseite. In der Diele befindet sich
ein geräumiger Einbauschrank. Das Bad ist hell gefliest und hat
Badewanne und einen Waschmaschinenanschluss. Der Wohnraum ist mit
neuwertigem Laminat ausgestattet. Ein Kellerabteil und ein Tiefgaragenstellplatz
gehören dazu. Die Wohnung ist vermietet. Kaltmiete € 310.-- + 40.-- €
Tiefgaragenstellplatz +125 € NK. Das Hausgeld beträgt € 177.--.
Der Mieter
möchte gerne in der Wohnung bleiben - daher Verkauf bevorzugt an Kapitalanleger! Kaufpreis: € 124.000.— + € 15.000.—für den
Tiefgaragenstellplatz.
Gesamtkaufpreis: € 139.000.-- zzgl. Käuferprovision 3,57 % inkl.
Mwst
Widerrufsbelehrung als
Word-Dokument

|
|
|
| |
| Energieausweis - Ausweistyp: |
| Befeuerungsart: |
Erdgas |
|
| Baujahr Anlagentechnik: |
1992 |
|
| Warmwasser enthalten: |
ja |
|
| Energieeffizienzklasse: |
-E- |
|
|
| Verbrauchsausweis: |
Endenergieverbrauch: 136
kWh/(m²a) |
|
|
|
|
|
Anfrage per Telefon: 08191-42
686 oder per e-mail |
 |
|
| |
 |
zurück
zu allen Wohnungen |